型号:KZ-WS-1000KN-3000KN
最大试验力:100吨 200吨 300吨
试验力测量范围:2-100%FS
麻豆免费性爱视频示值误差:≤±1%
试验力值显示方式:计算机实时采集存储及屏幕显示实时读数位
移量程(油缸行程mm):600、1000、1500三种规格可选
位移分辨率(mm):0.01
位移测量示值误差:≤±1%
位移值显示方式:计算机实时采集存储及屏幕显示实时读数
拉伸试验最大间距(不含活塞行程):7m,可根据用户的需求定做
拉伸调整范围:3-10m
传销孔最大直径(mm):180
油缸加载速度:0-100mm/min
油缸最大空栽、复位速度:(mm/s)150mm/min
控制方式和数据处理:计算机伺服系统及数据(试验力、位移、变形)图形采集处理等
安全保护装置:防护罩两大两小(折叠式),各1.5米
试验力等速率控制:0.1—100%FS,控制范围:2-100%
等速率控制精度:±2% 设定值位移
等速率控制:0-50mm/min
等速率控制精度:±2% 设定值
恒试验力、恒位移控制精度:±1% 设定值
试验曲线:试验力(应力)-时间、试验力(应力)-位移(变形)等,具有试验力、位移(变形)、时间及试验曲线动态显示等功能。
吊装带卧式拉力麻豆免费性爱视频技术方案整体简述:
一、整机组合
1.主机系统;
2.伺服油源系统;
3.微机控制伺服控制系统;
4.电气控制柜;
5.位移测量系统;
6.穿销拉头附具;
7.防护装置。
二、主机系统(见图片1):
主机部分主要由油缸座、1000KN双作用单出杆油缸、移动横梁、拉杆、油缸座、两侧框架及前后拉头座及高精度负荷传感器等部件组成。
油缸座、框架采用钢板焊接结构,移动横梁和前后拉头座采用整体铸钢结构、油缸座、框架及后拉头座形成受力框架。
前后拉头座、调节横梁装有穿销拉头附具,分别满足钢丝绳、吊带、卸扣等试样联接拉头附具的两端,单出杆双作用低摩擦活塞缸在液压油的作用下带动移动横梁运动,从而将试验力施加到试样上。后拉头座与受力框架之间采用上下手动插销联接,用于有级调整试验空间,计算机通过控制比例伺服阀来实现试验的自动控制试样拉伸试验。
图1 主机外形示意图片
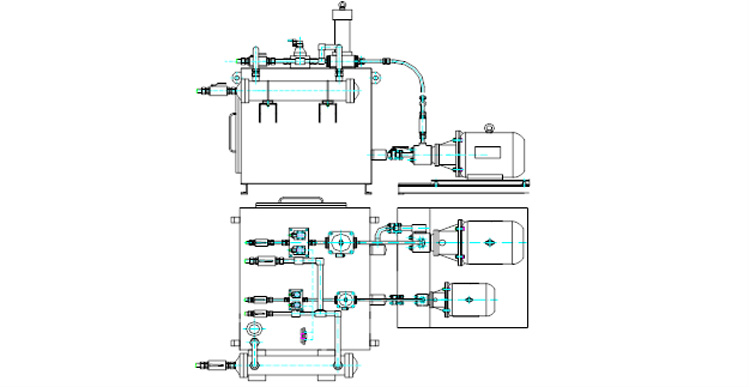
三、油源(泵站)系统:(见图2)
如图2,油源系统由主副油泵电机组、油箱(含阀组及配套设施)、管路系统、强电系统四大部分组成。
图2 油源布局示意图
1、油泵电机组采用平面布局,由两套主副油泵电机组成,整套系统按照节能、布局简洁的原则进行设计。
2、主油箱。配电子式油温、油位计,压力过滤器,空气滤清器等并带有油温、液位、油阻保护与指示装置,根据油路的使用要求配相应高精度的滤油装置并配备独立降温冷却装置。
3、管路系统:油箱至主机系统的管路以及主机上固定部分的管路采用无缝钢管连接,主机上移动部分各油缸采用高压软管联接。(销轴锁紧缸、主加载油缸的液压管路采用高压软管联接)。
4、强电系统:操作控制台采用一体化台式结构,布置于试验操作区,并有专门设计的操作面板使各类试验操作一目了然。
四、控制系统:
1、采用以计算机为核心的全数字电液伺服控制器,自动完成试验过程;
2、采用PC机,Win7/Win10操作系统,具备智能用户可编程试验谱功能,等速率试验力控制,等速率位移(应变)控制,试验力保持试验等多种试验模式任意组合,最大程度地满足了各类试验方法的要求;并以良好的用户界面实现试验需要的各类数据显示、曲线绘制、数据处理及存储功能;
3、采用计算机自动控制阀控制试验力的加载,操作方便;
4、采用(高精度负荷传感器、位移传感器)反馈的伺服阀控制系统具有应力(试验力)、位移(变形)控制方式;
5、高精度负荷传感器测量应力(试验力);
6、配备应力(试验力)、位移(变形)闭环伺服控制控制系统,两种控制模式之间可在任何情况下平滑切换;
7、试验操作具有手动和自动两种操作系统;
8、打印机打印试验报告;
9、软件及用户界面:中文Win7平台下开放式、图示化、易操作的试验软件。用微机完成整机试验参数的设定、工作状态控制、数据采集、处理分析、显示打印试验结果等功能。可根据国家标准国际标准或用户提供的标准测量各种钢丝绳的物理性能,并对试验数据进行统计处理和判断,然后输出各种要求格式的试验报告和特性曲线图样;
10、具有完整的安全保护装置:防护罩两大两小(折叠式),各1.5米;
11、当试验力超过最大试验力的2%-5%时,过载保护,系统卸荷;
12、保护功能:超载保护,限位保护,过流、过压、超温保护。防冲击保护。设置急停控制开关,在遇到意外情况下,能夠可靠的锁定设备。
软件展示